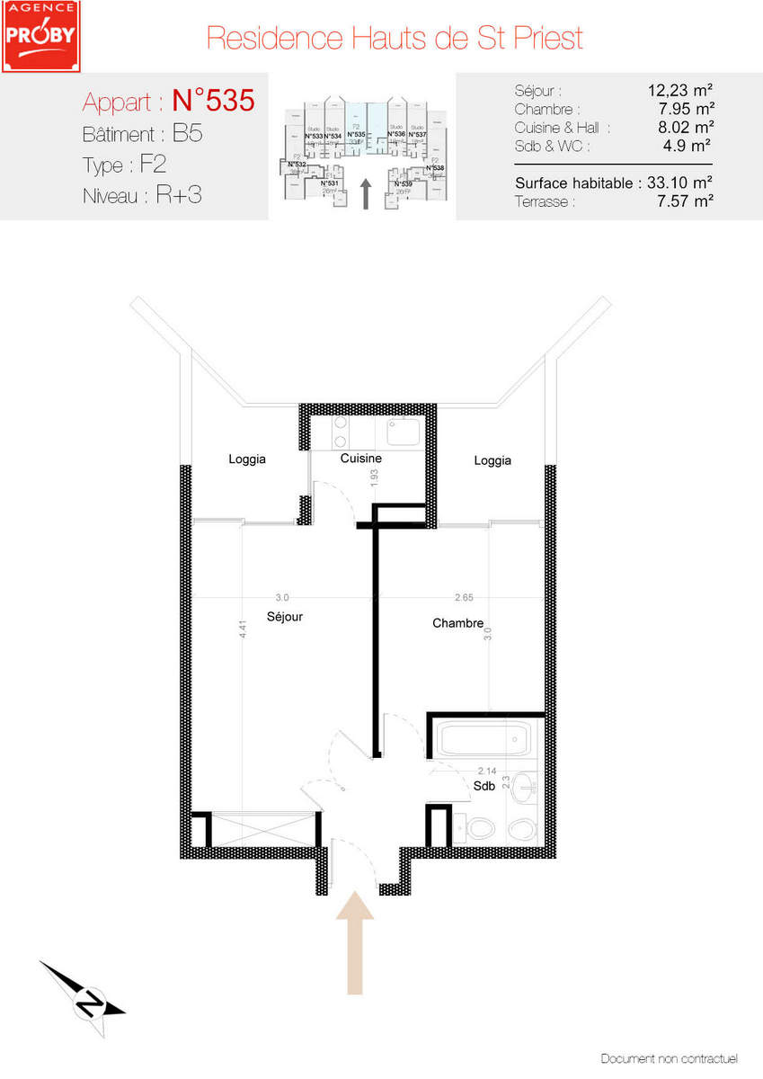
Au cœur du quartier hôpitaux facultés F2 rénové de 34m² situé au 3ème et dernier étage.
Ce bien comprend un séjour donnant sur une petite terrasse, une cuisine équipée séparée, une chambre avec placard donnant également sur une petite terrasse et une salle de bains.
A proximité de la Faculté de médecine et du tramway ligne 1
Tramway : Ligne 1 arrêt « Occitanie » et « Château d’Ô »
Bus : Ligne 6 et 7
Please enter your username or email address. You will receive a link to create a new password via email.

Votre demande de contact a bien été prise en compte.
Nous vous remercions pour l’intérêt que vous nous portez.
Nous vous répondrons dans les meilleurs délais.
L’équipe Proby